中央人民政府网
|
甘肃政府网
|
张掖政府网
|
甘州区政务服务
网站支持IPV6
无障碍阅读
适老化模式
个人中心
首页
聚焦甘州
甘州概况
领导之窗
政策文件
政府信息公开
办事服务
政民互动
搜索
智能小掖
甘快办
收藏
订阅
温馨提示:
收藏、订阅需先登录,系统检测到您未登录,请点击“确认”将为您跳转到登录页面。
确认
当前位置:
首页
>
政府信息公开
>
法定主动公开内容
>
基层政务公开
>
城乡规划
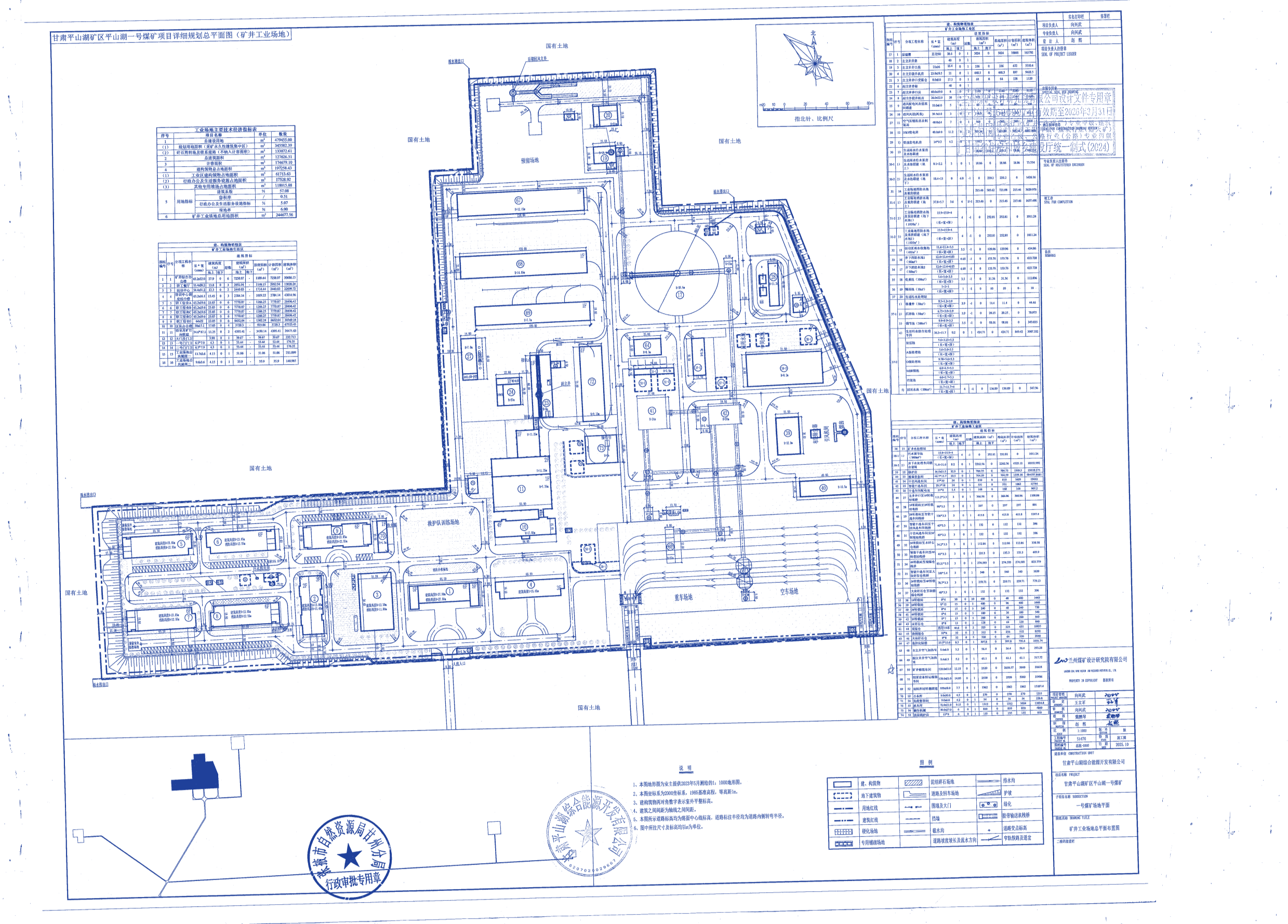
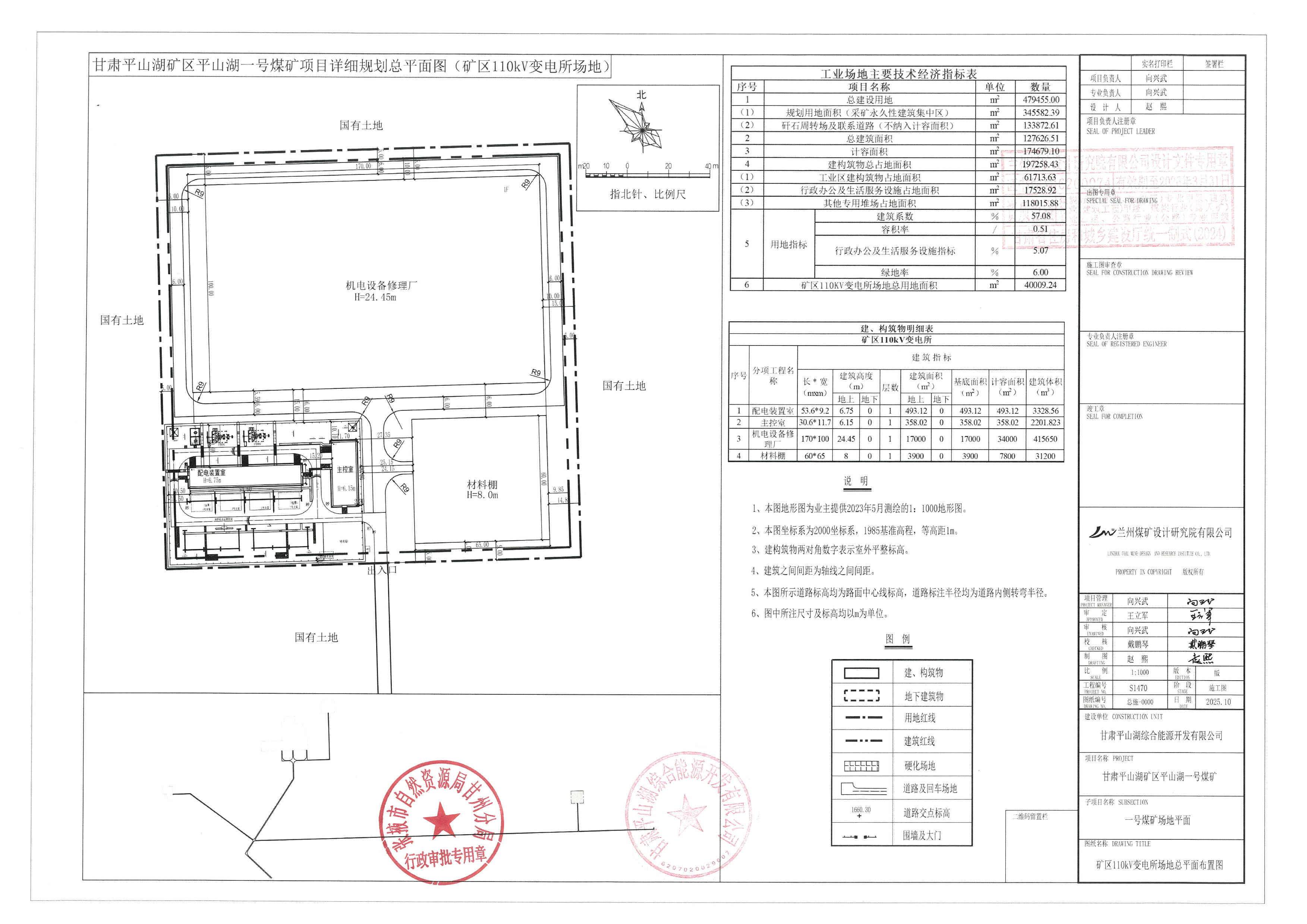
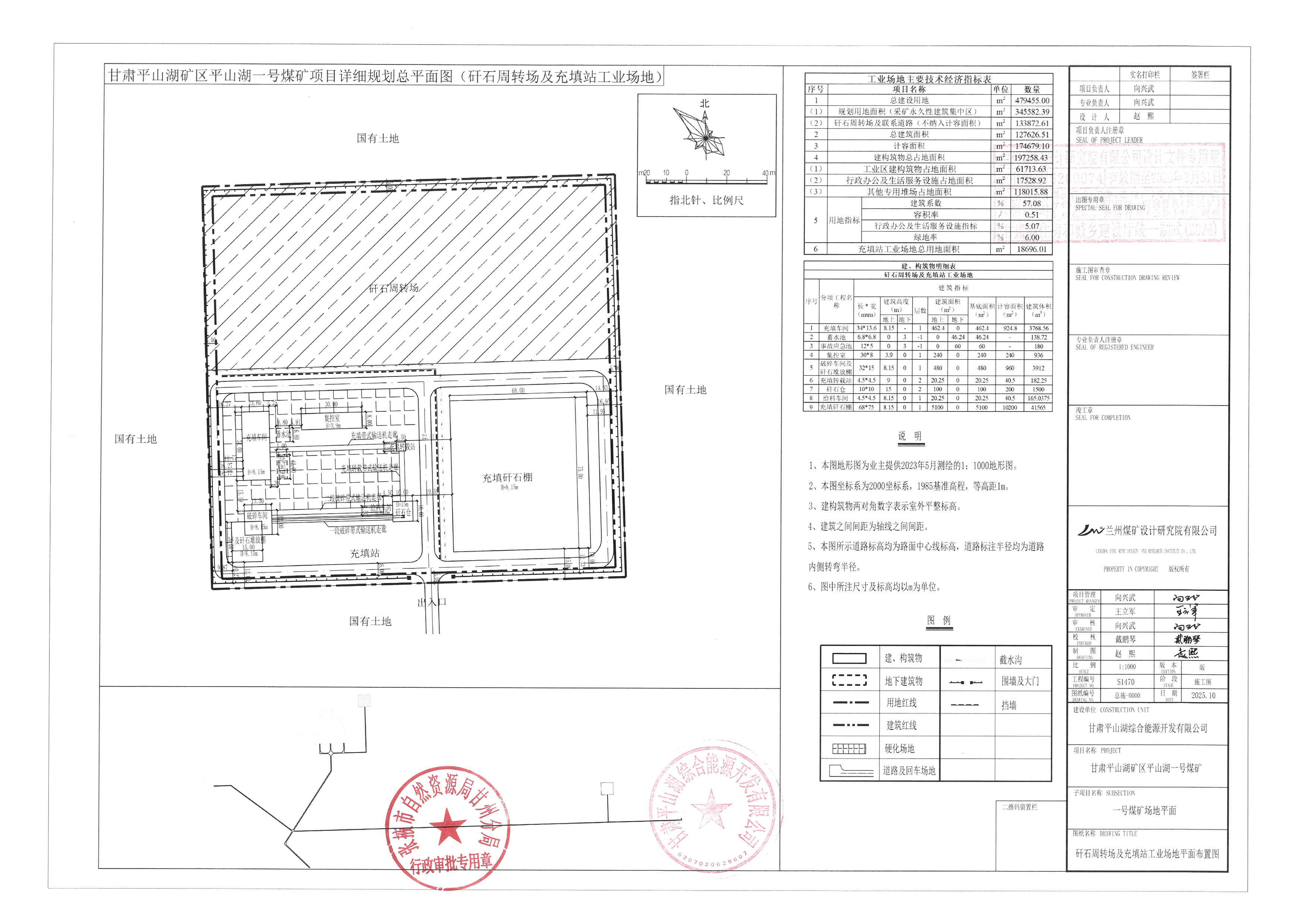
甘肃平山湖矿区平山湖一号煤矿项目工程规划许可证批后公示
发表日期:2025-12-26 16:40:54
发布机构:市自然资源局甘州分局
索引号
620702078/2025-00367
发文字号
关键词
发布机构
市自然资源局甘州分局
公开形式
责任部门
生成日期
2025-12-26 16:40:54
是否有效
扫一扫在手机打开当前页面
网站导航
国家部委网站
各省区市网站
中国政府门户网站
国家市场监督管理总局
国家税务总局
外交部
国防部
教育部
科技部
工业和信息化部
民政部
财政部
生态环境部
住房和城乡建设部
商务部
北京市
上海市
天津市
重庆市
江苏省
广东省
山东省
湖南省
安徽省
云南省
广西
贵州省
四川省
福建省
江西省
海南省
黑龙江省
吉林省
辽宁省
陕西省
青海省
甘肃省
河南省
河北省